Välinrett containerhus lämpligt som permanent bostad året runt
590 000 kr
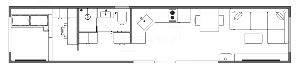
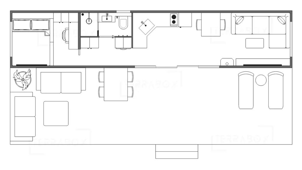
Ett möjligt permanentboende för 1-2 personer med ett stort L-kök och ett rymligt separat sovrum. Sovrummet har en arbetsplats, flera längdmeter av bokhyllor, och extra mycket förvaring. Det allmänna rummet rymmer en soffgrupp, stor bokhylla, samt ett matbord. En stor glasad skjutdörr ger rikligt med naturligt ljusinsläpp. Utanför badrummet finns extra förvaringsutrymmen samt plats för en tvättmaskin. Värmepump och god isolering gör den möjlig att bo i även under vintermånaderna.
590 000 kr + frakt
Kolla upp totalpris inkl frakt
Borgholm
590 000 kr + frakt
När vi mottagit din leveransadress kontaktar vi dig med besked om det totala priset inklusive frakt. Detta är kostnadsfritt tjänst som ger total klarhet kring alla kostnader innan du beslutar om ett eventuellt köp.
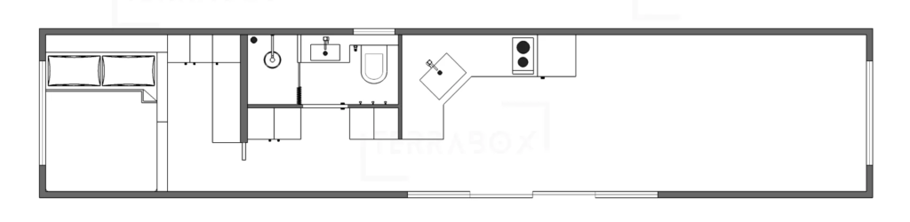
Ett containerhus om 40 fot byggd på en ”high cube” container vilken ger 30 cm högre takhöjd jämfört med den vanligare standardversionen.
Den har ett rymligt L-kök med en stor kyl, en induktionshäll med två plattor, och en väl tilltagen vask.
I ett separat sovrum finns dubbelsäng och en arbetsplats samt extra tilltaget med förvaringsutrymmen och bokhyllor. Sängmöbeln passar för en dubbelmadrass av storlek 200 x 160 cm. Alla möbler i sovrummet utom stolen och bäddmadrassen ingår.
Vardagsrummet har plats för en soffhörna, en bokhylla och ett matbord i anslutning till köket. Dessa möbler ingår inte.
Stora glasade skjutdörrar ger rikligt med naturligt ljusinsläpp. Övriga fönster är även de väl tilltagna i storleken.
Huset är vinterbonat för nordiska förhållanden med en värmepump och välisolerade väggar/golv/tak med ett 50 mm tjockt lager av polyuretan-skum.
LED belysning finns installerad och inbyggd överallt där det behövs. Belysningen styrs med dimrar och man kan även växla mellan varm, neutral och kall vitbalans.
- Rymligt kök med stor kyl/frys och 2 st induktionsplattor
- Badrum med dusch
- Utrymme för tvättmaskin
- Varmvattensberedare
- Värmepump
- Komplett elinstallation med bl.a. eluttag och brytare
- Innerbelysning LED med brytare & dimrar
- Dimbar utebelysning
- Brandvarnare
- Alla sovrumsmöbler utom stol och madrass ingår
- Förvaringsmöbler utanför badrum ingår
| Typ: | Året runt bostad |
| Containerstorlek: | 40 Fots ’High Cube’ |
| Innermått: | 1185 x 225 x 250 cm |
| Yttermått: | 1219 x 244 x 290 cm |
| Invändig takhöjd: | 250 cm |
| Rekommenderad grund: | 6 st 40×40 cm betongplintar (ritning kan skickas) |
| Sovrum: | 1 st |
| Sovplatser: | 2 st |
| Badrum: | 1 st med dusch |
| Värmesystem: | Värmepump |
| Isolering: | 50 mm polyuretan-skum |
| Kylsystem: | Ej installerat. Finns som tillval. |
| Ventilation: | Ventilationsfläktar i alla rum |
| Ytterväggar: | 90 mm |
| Invändig väggbeklädnad: | Gipsskivor |
| Golv: | Laminat |
| Elsystem: | Fullständig installation. CE-certifierad, EU-standard. |
| VVS: | Fullständig installation i både badrum och kök |
| Varmvatten: | Elektrisk varmvattenberedare 30 L |
| Belysning: | Fullständig installation av LED allmänbelysning med strömbrytare/dimrar i alla rum |
| Utebelysning: | Fasadbelysning dimbar LED med 4 armaturer |
| Entrédörr: | Glasade skjutdörrar 360 cm bredd |
| Fönster: | 2 st 150 x 150 cm, badrumsfönster |
| Säng: | 200 x 160 cm |
| Spis: | Induktionshäll med 2 st plattor |
| Kyl & Frys: | Stor kyl med frysfack. Ikeas Hållnäs 174 L kyl med 16 L frysfack. 5 års garanti. |
| Plats för tvättmaskin: | Ja. Max djup 45 cm. |
| Garderober: | Totalt ca 200 cm i bredd. 8 st överskåp. |
| Övrig förvaring: | Lådor i sängmöbeln |
| Fasadfärg: | Mattsvart |




















